3 Level Split House Plans : Split Level House Plans Home Designs The House Designers / The upper level houses the three bedrooms and two baths.. What are a few of the most sought after features of the split foyer house plans, and what are some of the reasons. When you're planning to build a home, there are many different style options to consider. At houseplans.pro your plans come straight from the designers who created them giving us the ability to quickly customize an existing plan to since we are the original designers of the plans on houseplans.pro we can match or beat any price of the same exact plan found elsewhere. The benefits of buying house plans online. In a split level or split foyer floor plan, the front door opens to a landing or a floor containing the living room, dining room, and kitchen.

Examine this significant illustration as well as look at today related information on modern home renovation. What are a few of the most sought after features of the split foyer house plans, and what are some of the reasons. Split level house plans offer many benefits. With the newbury split level house plans from 84 lumber, main, upper and lower levels serve you and your family with great ease and living room, dining room and kitchen on the main level. When you're planning to build a home, there are many different style options to consider.

2 3 4 Or More New House Floor Plan Has Split Level Style Designs Ideas On Dornob
2 3 4 Or More New House Floor Plan Has Split Level Style Designs Ideas On Dornob from dornob.com
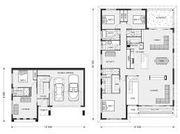
Split level homes offer living space on multiple levels separated by short flights of stairs up or down. When you're planning to build a home, there are many different style options to consider. The entry is usually located between the basement level and the upper level with stairs going to each level. 28+ ideas split level remodel exterior before and after home. Level 0 and level 1 tabs now appear above the plan as show below. Looking for more real estate to buy? Split level house plans are economical house plans to build. Frequently you will find living and dining areas on the main level with bedrooms located on an upper level.

Monsterhouseplans.com offers 29,000 house plans from top designers.

Split level house plans offer many benefits. It is hard to say just how many floors dynamic new split level homes like this really have, but pictures do a much better job than plans at showing the many. See 389 results for 3 bedroom split level house plans at the best prices, with the cheapest property starting from £110,000. Split level homes offer living space on multiple levels separated by short flights of stairs up or down. Monsterhouseplans.com offers 29,000 house plans from top designers. In a split level or split foyer floor plan, the front door opens to a landing or a floor containing the living room, dining room, and kitchen. Looking for more real estate to buy? This design has great interior. Examine this significant illustration as well as look at today related information on modern home renovation. Split foyer house plans typically provide an entry on one level, an upper level complete with a living space, kitchen and bedrooms, and a lower level with a bonus room area and a garage. Free shipping and free modification estimates. These models are attractive to those wishing to convert their basement into an apartment or to create a games room, family room. The entry is usually located between the basement level and the upper level with stairs going to each level.

Today, i'm proud to bring you my 3rd project shared on pmc so far! These models are attractive to those wishing to convert their basement into an apartment or to create a games room, family room. See 389 results for 3 bedroom split level house plans at the best prices, with the cheapest property starting from £110,000. Staggering levels results in a cost savings since you typically won't have a full. We include floor plans that split the main floor in half, usually with the bedrooms situated a few steps.

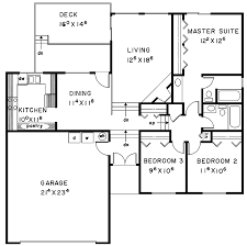
Plan 046h 0115 The House Plan Shop
Plan 046h 0115 The House Plan Shop from www.thehouseplanshop.com
Split level house plans are economical house plans to build. The benefits of buying house plans online. The middle level of the house plan often contains the living and dining area, the upper level holds the bedrooms, and the lower lever typically features a finished family room and garage. The entry is usually located between the basement level and the upper level with stairs going to each level. The relaxed and informal split level house plan caters to growing families, with separate spaces for daily activities. Subscribe for more 3d home idea video, with floor plan ,3d animation/interior walkthrough and estimated costsplit level houselevel 1 40 sqmlevel 2 40 sqm3. We include floor plans that split the main floor in half, usually with the bedrooms situated a few steps. Choose from various styles and easily modify your floor plan.

There are typically two short sets of stairs, one running upward to a bedroom level, and one going downward toward a basement area.

Split level house plans are economical house plans to build. We include floor plans that split the main floor in half, usually with the bedrooms situated a few steps. Outdoor living can be enhanced, for example, by a patio off of the living room on the main level and a deck from the kitchen on the second floor. These models are attractive to those wishing to convert their basement into an apartment or to create a games room, family room. At houseplans.pro your plans come straight from the designers who created them giving us the ability to quickly customize an existing plan to since we are the original designers of the plans on houseplans.pro we can match or beat any price of the same exact plan found elsewhere. In a split level or split foyer floor plan, the front door opens to a landing or a floor containing the living room, dining room, and kitchen. What are a few of the most sought after features of the split foyer house plans, and what are some of the reasons. See 389 results for 3 bedroom split level house plans at the best prices, with the cheapest property starting from £110,000. One small flight of stairs leads up to the top floor, while another short set of stairs leads down. The benefits of buying house plans online. Frequently you will find living and dining areas on the main level with bedrooms located on an upper level. This design has great interior. An abundance of space is perhaps the most compelling, as the homes are especially popular among homebuyers with children.

With the newbury split level house plans from 84 lumber, main, upper and lower levels serve you and your family with great ease and living room, dining room and kitchen on the main level. These models are attractive to those wishing to convert their basement into an apartment or to create a games room, family room. The top floor usually features the living areas. When you're planning to build a home, there are many different style options to consider. The upper level houses the three bedrooms and two baths.

Split Level House Plans Best Floor Plans For Homes 15 Amazing Ideas Split Level House Plans Split Level Home Designs Tri Level House
Split Level House Plans Best Floor Plans For Homes 15 Amazing Ideas Split Level House Plans Split Level Home Designs Tri Level House from i.pinimg.com
Examine this significant illustration as well as look at today related information on modern home renovation. Subscribe for more 3d home idea video, with floor plan ,3d animation/interior walkthrough and estimated costsplit level houselevel 1 40 sqmlevel 2 40 sqm3. Decide how many levels your home will need to have based on your vision, but stay open. Staggering levels results in a cost savings since you typically won't have a full. See 389 results for 3 bedroom split level house plans at the best prices, with the cheapest property starting from £110,000. In a split level or split foyer floor plan, the front door opens to a landing or a floor containing the living room, dining room, and kitchen. Looking for more real estate to buy? Today, i'm proud to bring you my 3rd project shared on pmc so far!

What are a few of the most sought after features of the split foyer house plans, and what are some of the reasons.

It is a 3 floor, mid/late 1970's era split level home with several subtle spanish revival influences. Select plan > add level menu item to create a new level. Free shipping and free modification estimates. Today, i'm proud to bring you my 3rd project shared on pmc so far! Outdoor living can be enhanced, for example, by a patio off of the living room on the main level and a deck from the kitchen on the second floor. The top floor usually features the living areas. An abundance of space is perhaps the most compelling, as the homes are especially popular among homebuyers with children. These models are attractive to those wishing to convert their basement into an apartment or to create a games room, family room. Split level homes offer living space on multiple levels separated by short flights of stairs up or down. Split foyer house plans typically provide an entry on one level, an upper level complete with a living space, kitchen and bedrooms, and a lower level with a bonus room area and a garage. The benefits of buying house plans online. The middle level of the house plan often contains the living and dining area, the upper level holds the bedrooms, and the lower lever typically features a finished family room and garage. We include floor plans that split the main floor in half, usually with the bedrooms situated a few steps.

By